Buenas a todos,
Un conocido,al que le estoy muy agradecido,me ha dejado esta pistola para que vaya iniciándome en el tiro hasta que tenga la F y la AE.
Y ya que me la ha prestado, me gustaría devolvérsela arreglada, ya que pierde gas por el cañón.
Imagino que será alguna tórica
Alguien la ha tenido y me podría decir como desmontarla para cambiar la junta de la válvula?
Arreglar Walther cp2
- snake-eater
- .30-06

- Mensajes: 527
- Registrado: 01 Ago 2015 14:41
- Contactar:
- Estado: Desconectado
-
mundocruel
- .30-06

- Mensajes: 606
- Registrado: 20 Jun 2008 06:01
- Contactar:
- Estado: Desconectado
Re: Arreglar Walther cp2
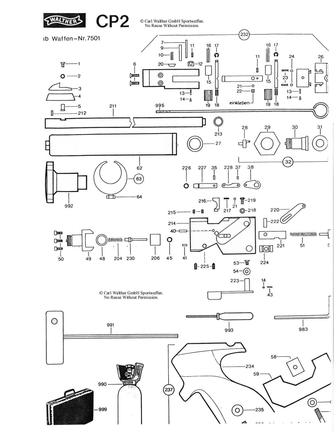
Aqui tienes el plano de la CP2 en tiempos compre la junta en TOP-GUN de Madrid.Un saludo
Re: Arreglar Walther cp2
Buenas tardes: Yo tengo una cp3, el problema que da la tórica de la valvula es que al ponerle la botella
sale el gas con un siseo continuo. Saludos.
sale el gas con un siseo continuo. Saludos.
- snake-eater
- .30-06

- Mensajes: 527
- Registrado: 01 Ago 2015 14:41
- Contactar:
- Estado: Desconectado
Re: Arreglar Walther cp2
Eso es, es un siseo que se oye por la boca del cañón. Cuál es la tórica que debería cambiar entonces?
Deduzco que la marcada como 48 en el desglose
Deduzco que la marcada como 48 en el desglose
- manolosolo
- .50 Bmg

- Mensajes: 17953
- Registrado: 02 Ene 2009 06:01
- Ubicación: Galicia
- Contactar:
- Estado: Desconectado
Re: Arreglar Walther cp2
En una pistola, ya algo veterana, creo que una vez que se desmonta, lo mejor, es cambiarle todas sus toricas a la vez, puesto que hoy, puede fallar una, y dentro de un mes, otra.......
Saludos.
Saludos.
-
mundocruel
- .30-06

- Mensajes: 606
- Registrado: 20 Jun 2008 06:01
- Contactar:
- Estado: Desconectado
Re: Arreglar Walther cp2
Te falla la 45 pero sigue los consejos de manolosolo.Un saludo
- snake-eater
- .30-06

- Mensajes: 527
- Registrado: 01 Ago 2015 14:41
- Contactar:
- Estado: Desconectado
Re: Arreglar Walther cp2
Eso haré, el tema es que no se como sacar la 45, lo previo, la rosca de la botella, la 48, el muelle y el embolo sin problema, pero todo lo siguiente lo veo tan profundo y no veo de dónde tirar que me da apuro
Enviado desde mi Aquaris_A4.5 mediante Tapatalk
Enviado desde mi Aquaris_A4.5 mediante Tapatalk
- manolosolo
- .50 Bmg

- Mensajes: 17953
- Registrado: 02 Ene 2009 06:01
- Ubicación: Galicia
- Contactar:
- Estado: Desconectado
Re: Arreglar Walther cp2
Creo que la rosca del deposito de CO2, va sellada con fijatornillos, y no es muy facil de sacar, si no es por un profesional........
Saludos.
Saludos.
- snake-eater
- .30-06

- Mensajes: 527
- Registrado: 01 Ago 2015 14:41
- Contactar:
- Estado: Desconectado
Re: Arreglar Walther cp2
si, la rosca de la botella la he retirado sin problema, el muelle y el embolo tambien, pero la torica esta como encajada bajo un "chaflan" y no consigo extraerla
- manolosolo
- .50 Bmg

- Mensajes: 17953
- Registrado: 02 Ene 2009 06:01
- Ubicación: Galicia
- Contactar:
- Estado: Desconectado
Re: Arreglar Walther cp2
Hola, igual necesitas estos ganchos, yo, los compre en el chino de la esquina de mi casa, creo que por 80 centimos......
Saludos.
Saludos.
- snake-eater
- .30-06

- Mensajes: 527
- Registrado: 01 Ago 2015 14:41
- Contactar:
- Estado: Desconectado
Re: Arreglar Walther cp2
premio, tenia una ganzua que nunca uso, y la he repasado con la dremel hasta dejarla en punta y he conseguido sacarla.
Para si le pasa a alguien mas, la medida de la junta es 6mm de diametro interior y 2mm de grosor.
Un saludo y gracias a todos!!!
Para si le pasa a alguien mas, la medida de la junta es 6mm de diametro interior y 2mm de grosor.
Un saludo y gracias a todos!!!

¿Quién está conectado?
Usuarios navegando por este Foro: No hay usuarios registrados visitando el Foro y 29 invitados

